Elizaveta Petukhova

Architect, 9 years of experience

15+

$0.2–500 million

85–65 000 m²

6

5–6700

0–5

1–8

  • construction supervision
  • design & development
  • project management
  • team management of 1-5 architects
  • employees training
  • coordination of contractors & manufacturers
  • client communication
  • concept development

  • congress & exhibition hall
  • theatre
  • high-rise residential
  • luxurious residential
  • historical
  • educational
  • low-rise residential
  • public

Experience covers a wide range of projects, from standard living housing and educational facilities to theatres, high-end developments, and heritage sites in the historic centre of Moscow. Working with different scales and typologies has formed versatility and adaptability, while leading project teams has improved coordination and leadership skills. Every project and its tasks were managed with a high degree of independence - from concept development to construction documentation. Adaptability to new contexts and standards helps me work confidently in international environments, where architecture is seen as the integration of ideas, technology, and space.

In work I actively use digital tools - from BIM and parametric modelling to artificial intelligence - to optimise workflows and visualisation. This approach provides accuracy, efficiency, and integration of solutions in complex projects.

Looking ahead, my growth is connected with work in international teams and contribution to projects of greater scale. My goal is to keep moving forward, combining professional expertise with continuous development and a commitment to shape the architecture of the future.

Message me on LinkedIn
Riga, Latvia • open to relocation
English (B1), Russian (native)
Autodesk AutoCAD Rhinoceros Photoshop Illustrator InDesign

Work

2025–2026
28 100 m²

Montreal pavilion №70 in VDNH Moscow's most significant park

congress and exhibition hall (2500 seats)
A unique cultural heritage site. The project includes adaptation of the pavilion into a congress and concert center for 2500 seats, preserving the historical construction and glass facade, adding modern interiors and landscaping.

  • UK: 1–4 RIBA Stages (Preparation → Technical Design) + partial Stage 5 (Construction supervision)
  • EU: 2–8 HOAI Phases (Preliminary Planning → Site Supervision)
  • Full cycle from concept to construction docs, coordination, heritage research, BIM management, and site coordination.

Project Architect
management of 3 junior architects
I coordinate other specialists
2nd Architect
Head Architect
  • organisation and systematisation of architect team's work in BIM;
  • coordination of BIM-requirements with the client;
  • 3D modelling based on point clouds (laser scanning);
  • research of archives and historical context;
  • development of new interior solutions (from concept to construction documentation);
  • coordination of engineering and structural solutions;
  • selection of materials, furniture, and lighting (brand list);
  • preparation of presentation material;
Read more →
2024–2026
10 430 m²

New building of the Moscow Musical Theatre in the Hermitage Garden

cultural and entertainment venue (1000 seats)
Located in the Hermitage Garden, the new theatre has become a part of the central Moscow theatre cluster. Its vertical composition, restaurant with a terrace, and green roofs form a contemporary architectural landmark in the historical context.

  • UK: 1–4 RIBA (Brief → Technical Design) + partial Stage 5
  • EU: 2–8 HOAI
  • From concept to construction docs, BIM leadership, design approvals, and client coordination — technical and interior design.

Project Architect
management of 1 junior architect
I coordinate other specialists
Advisor Head Architect
  • development and supervision of architectural and interior solutions (from concept to construction documentation);
  • communication with the client, architectural approvals;
  • coordination of engineering, structural, and technological segments;
  • work and training other employees in BIM;
  • selection of materials, furniture, and lighting;
  • coordination of cost estimation;
  • preparation of presentation material;
Read more →
2024
9 780 m²

Ilyinka 3/8 - 300 meters from Kremlin

luxurious residential
Located within walking distance of the Kremlin, it connects 19-century mansions and modern residential buildings. Granite facades, arched openings, and glass walkways form a harmonious balance between old and new architecture.

  • UK: 3–5 RIBA (Developed / Technical Design + Construction Supervision)
  • EU: 4–8 HOAI (Approval → Site Supervision)
  • Integration of historical buildings, detailed construction documentation, coordination, and expertise review.

Project Architect
I coordinate other specialists
  • development of new buildings and their integration with historical buildings;
  • architectural support at all stages of the project, including state expertise review;
  • preparation of construction documents and supervision;
  • development of accessible (barrier-free) environments;
  • BIM work and requirement coordination with the client;
Read more →
2021–2023
50 000–65 000 m²

Large-scale residential projects

high-rise residential
Development of large-scale residential housing was a fundamental stage that provided experience in BIM, construction documentation, insolation and daylight factor calculations; base for further work on public and cultural projects.

  • UK: 3–4 RIBA (Spatial Coordination, Technical Design)
  • EU: 4–5 HOAI (Approval / Execution Design)
  • Development of construction drawings, BIM documentation, and compliance work at the execution level.

Architect
2-4 more Architects
1-7 Junior Architects
Advisor Head Architect
  • development of project and construction documentation (plans, sections, elevations, and details);
  • compiled material and element schedules of facades, roofs, walls, ceilings, furniture, and etc.;
  • insolation and daylight factor calculations;
  • coordination of architectural solutions with engineering and structural sections;
  • supervision;
Read more →
2019–2021
6 000–15 470 m²

Development of educational facilities

educational
Development of schools and kindergartens provided experience with social architecture, where space shapes the quality of the learning environment.

  • UK: 2–4 RIBA (Concept → Technical Design)
  • EU: 3–5 HOAI (Design → Execution Planning)
  • Concept development, daylight studies, planning solutions, and coordination with engineers.

Junior Architect
Architect
Head Architect
  • development of planning solutions;
  • creation of kindergarten interior design concept;
  • insolation and daylight factor calculations;
  • coordination of architectural solutions with engineering and structural sections;
Read more →
2017–2019
600–2 500 m²

Development of low-rise residential buildings and public facilities

residential / public
Starting stage: sketches, drawings, presentations, and documentation work - an experience which became the foundation of professional growth.

  • UK: 1–3 RIBA (Preparation → Developed Design)
  • EU: 2–4 HOAI (Preliminary → Approval Planning)
  • Early professional experience: sketches, layouts, and concept design drawings.

Junior Architect
Architect
  • preparation of technical drawings;
  • development of sketches and presentation materials;
  • review of initial and regulatory documentation;
  • assisting in development of planning solutions;
  • compilation of schedules and specifications;
  • material selection and making facade documentation
Read more →

Education

Strong academic background combining classical art education, architectural studies, and advanced digital skills.
2019–2024

Bachelor of Architecture, MArchI, Moscow Architectural Institute (State Academy)

Royal Institute of British Architects (RIBA) accredited since 1994, MArchI is the oldest and prestigious architectural school in Russia. Advanced training in architectural design, theory, and digital technologies.
2013–2017

Bachelor of Architecture, Immanuel Kant Baltic Federal University

Comprehensive architectural education with focus on urban housing, planning, and public buildings.
2006–2013

Art High School, Kaliningrad

Specialised art education in drawing, painting, and composition, providing a strong artistic foundation for architectural practice.

Professional Development Courses

Rhino, Grasshopper, Revit - advanced digital modeling and BIM technologies, applied in practice for design and coordination of complex projects.

Detailed description of work

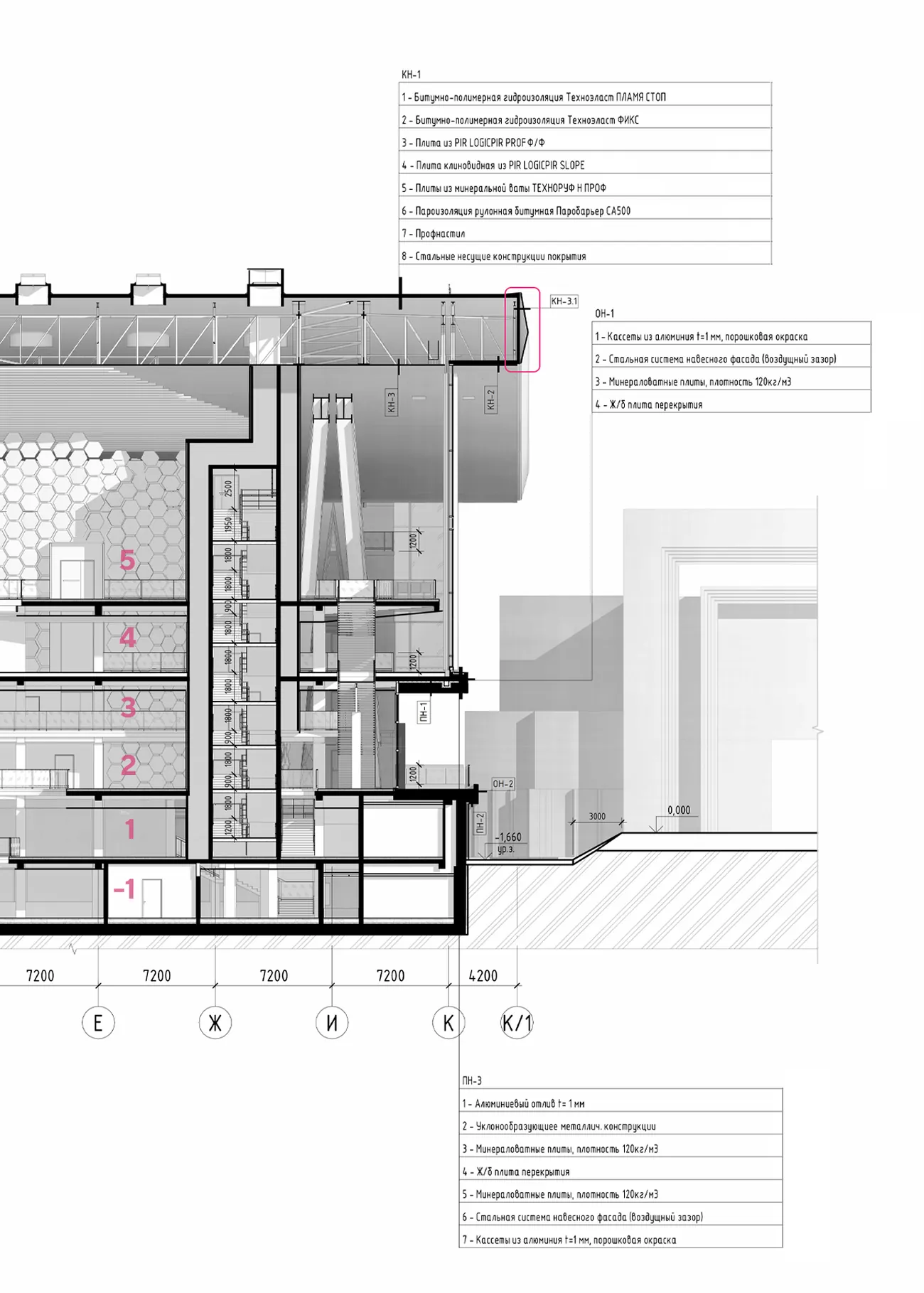
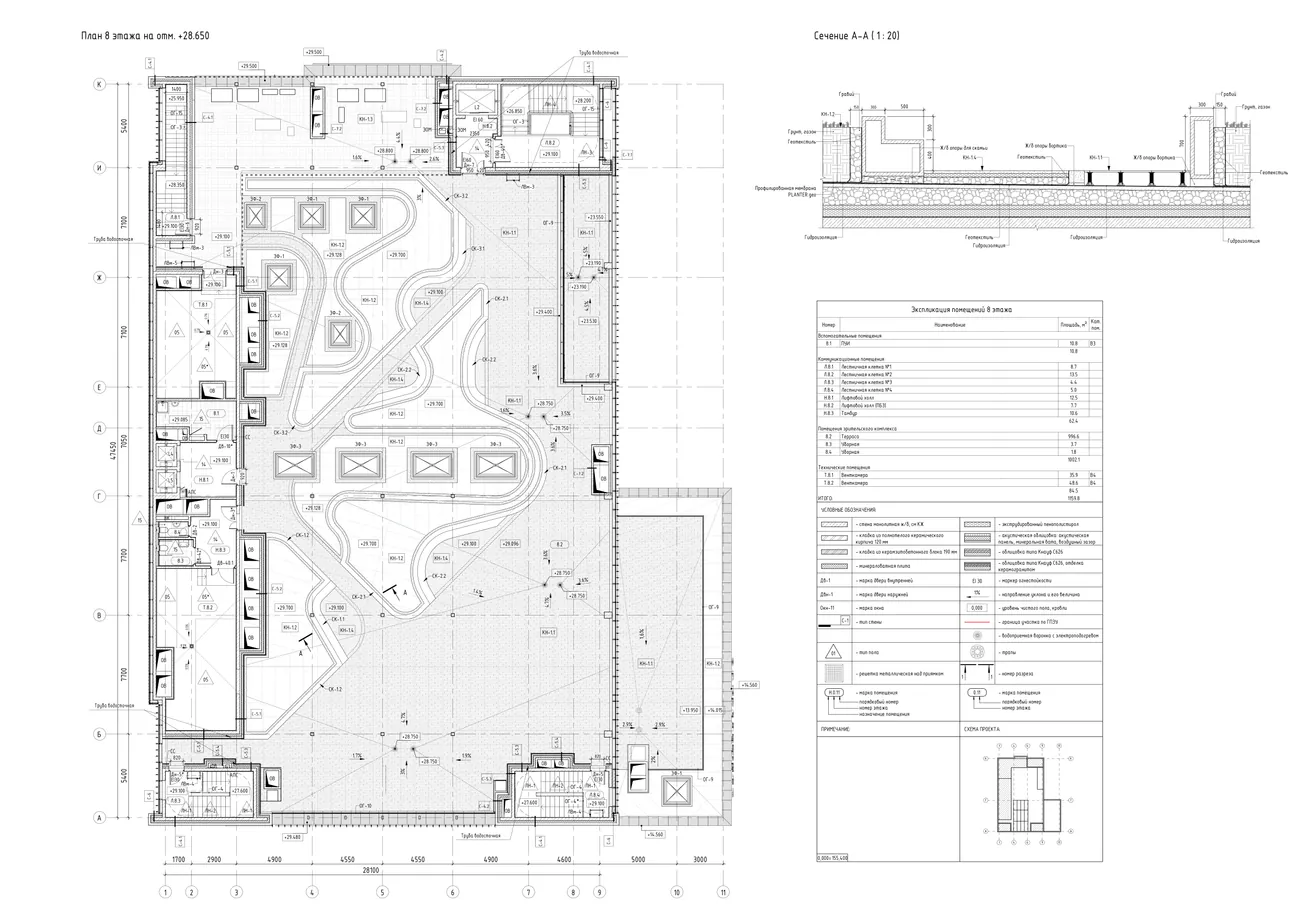
Montreal pavilion - "The symbol of Faith in human progress". Reconstruction and construction of congress and exhibition centre on the grounds of Moscow's most significant park, VDNH.

Restoration and adaptation for modern use of a recognised cultural heritage site - the USSR Pavilion at Expo-67 in Montreal (1967), the original architects: M.V. Posokhin, A.A. Mndoyants, B.I. Tkhor.

congress and exhibition hall

2025–2026

28 100 м²

2500 seats

VDNH park

MB-project

My coverage equivalent to RIBA UK and HOAI EU

  • UK: 1–4 RIBA Stages (Preparation → Technical Design) + partial Stage 5 (Construction supervision)
  • EU: 2–8 HOAI Phases (Preliminary Planning → Site Supervision)
  • Full cycle from concept to construction docs, coordination, heritage research, BIM management, and site coordination.

My team

Project Architect
management of 3 junior architects
I coordinate other specialists
2nd Architect
Head Architect

Responsibilities

  • organisation and systematisation of architect team's work in BIM;
  • coordination of BIM-requirements with the client;
  • modelling and structuring data within the informational model;
  • 3D modelling based on point clouds (laser scanning);
  • research of archives and historical context;
  • development of adaptation concept for the pavilion's new structure;
  • creation of planning structure and functional zoning;
  • development of new interior solutions (from concept to construction documentation);
  • coordination of engineering and structural solutions;
  • preparation of presentation material;
  • creation of the brand list and selection of materials, furniture, lighting, and etc.

The most complex stage was protecting the pavilion's historical value. Losing its cultural heritage status would have meant abandoning the unique structural scheme created more than 60 years ago.

For example, an attempt to bring the suspended glass facade (curtain wall) into compliance with today's thermal resistance standards would distort its original appearance, resulting in the loss of the building's identity.

The project successfully justified the preservation of the historical design without compromising safety or functionality.

Design

The project envisions transforming the Montreal Pavilion into a unified congress and concert centre. While preserving the historic character and unique engineering solutions of the 20th century, the building is reimagined as a modern space for business and cultural life, connecting people and ideas.

The key work principal is careful approach to heritage. The main historical elements are: the V-shaped supports, the roof, and the glass facade. They are being preserved and reconstructed based on 1967 archival data. Additionally the pavilion obtains a modern "warm" envelope, in contrast to the original "cold" construction.

The central element of the complex is a 2500-seat congress and concert hall. Its construction is placed between the supports and the roof without disturbing the historical load-bearing elements. Modern equipment allows the venue to host a variety of event: conferences, forums, concerts, and theatrical performances.

The project also includes:

  • preservation of authentic structural solutions;
  • creation of a barrier-free environment for people with limited mobility;
  • interior design and landscape design.

The pavilion unites original architecture and new volumes of the modern hall, creating a unique synthesis of the past and the future.

Historical context

Montreal pavilion is a unique cultural heritage project. After a complicated journey, transported piece by piece by sea and land from Montreal (Canada, Expo'67), it was reassembled in Moscow in 1976 and has been preserved almost in it's original state.

At the World Expo, it was nicknamed the "Flying Roof." At night, the building lit up brightly, appearing weightless and soaring into the sky. The symbolism was clear: the Soviet Union - the first nation in space, with an exhibition inside dedicated to space exploration.

The Canadian newspaper "The Montreal Star" described the Soviet pavilion as "the best ever presented at a world exhibition."

The architecture was shocking in scale: four levels connected by eight escalators, reaching a maximum of 42m, with a total exhibition area of 13,000m². The 10,000m² roof, shaped like the hypotenuse of a giant triangle, was supported by only two V-shaped columns. A suspended glass facade up to 28m high enhanced the sense of lightness and dynamism. Even today, this engineering solution remains unique in world architecture.

New building of the Moscow Musical Theatre in the Hermitage Garden

The only non-state Musical Theatre in Russia since 2012. In 2023, the project was granted the status of a large-scale investment project.

cultural and entertainment venue

2024–2026

10 430 м²

1000 seats

My coverage equivalent to RIBA UK and HOAI EU

  • UK: 1–4 RIBA (Brief → Technical Design) + partial Stage 5
  • EU: 2–8 HOAI
  • From concept to construction docs, BIM leadership, design approvals, and client coordination — technical and interior design.

My team

Project Architect
management of 1 junior architect
I coordinate other specialists
Advisor Head Architect

Responsibilities

  • development and supervision of architectural and interior solutions - from concept to construction documentation;
  • direct communication with the client and architectural approvals;
  • coordination of all sections (engineering, structural, technological) throughout the development process;
  • organisation and systemisation of architect team's work in BIM;
  • preparing guidelines and training the team members in BIM workflows;
  • data modelling and structuring within the informational model;
  • creation of the brand list and selection of materials, furniture, lighting, and etc.;
  • coordination of cost estimation;
  • preparation of presentation material;

This project presents a significant milestone in architectural practice, providing unique experience in the development of theatres - one of the most technically and artistically complex building types.

Key area of expertise gained

  • acoustics and lighting - auditorium design, visibility calculations, and creation of an optical acoustic environment;
  • stage technologies - planning of the stage, orchestra pit, and integration of stage equipment;
  • functional spaces - design of dressing rooms, rehearsal halls, storage for scenery, and auxiliary facilities;
  • aesthetics and detailing - interior design solutions, bespoke furniture, unique finishes, and tailored lighting scenarios.

Developing a theatre is a pivotal professional experience: the building is conceived not only as form. and space, bus as a living organism where architecture, technology, and atmosphere merge into a single artistic statement.

Design

The design of the new theatre was shaped largely by the challenging conditions of the site: its limited dimensions, proximity to neighbouring buildings, and the strict regulations of the protected zone. These constrains defined the vertical composition, which references the silhouette of the lost landmark of the Hermitage Garden - the Shchukin Stage. The building integrates perfectly into the surrounding theatre cluster while maintaining its individuality, becoming a new architectural focal point of the garden.

The main facade is conceived as a dynamic "theatrical curtain": a glass system with decorative lamellas and a silkscreen pattern that comes to life in motion. Evening light enhances the effect, turning the building itself into a spectacle.

Vertical zoning made it possible to place a restaurant with a terrace above the auditorium, offering views of the city centre and the garden. The accessible roof is landscaped with a two-tier system of grasses and reeds, while built-in benches and glass-fiber concrete edges create a space for relaxation and social interaction.

The theatre's interiors emphasise the uniqueness of the project: hand-glazed ceramics, custom tile layouts, bespoke furniture, and signature lighting fixtures create an environment where architecture, craftsmanship, and performing arts merge into one. Every space - from the auditorium to the foyer - contributes to a distinctive "musical" atmosphere.

Historical context

The new theatre is being constructed in the southeastern part of the Hermitage Garden, on the site of the dismantled Shchukin Stage (2023). The plot lies entirely within a strictly regulated development zone and a protected cultural layer, surrounded by the Sphere and Hermitage theatres.

The Ilyinka 3/8 collection of club mansions is located just 300m from the Kremlin, within a strictly protected heritage zone

luxurious residential

2024

9 780 м²

sminex.com

ilyinka.ru

MB-project

My coverage equivalent to RIBA UK and HOAI EU

  • UK: 3–5 RIBA (Developed / Technical Design + Construction Supervision)
  • EU: 4–8 HOAI (Approval → Site Supervision)
  • Integration of historical buildings, detailed construction documentation, coordination, and expertise review.

My team

Project Architect
I coordinate other specialists

Responsibilities

  • development of new buildings and their integration with historical buildings;
  • architectural support at all stages of the project - including state expertise review;
  • development of the project and working documentation for the architectural section;
  • supervision;
  • creation of barrier-free environment for people with limited mobility;
  • organisation and systematisation of architect team's work in BIM;
  • requirement coordination with the client;
  • data modelling and structuring within the informational model;

The project provided valuable experience in working with elite housing in the historic centre of Moscow. During the development process, I gained expertise in:

  • methods of integrating historic buildings with contemporary volumes;
  • working with premium facade materials and bespoke architectural details;
  • development of private communal spaces (courtyard garden, club zones, terraces);
  • implementing advanced engineering technologies ensuring the highest level of comfort and privacy.

This project shaped a systematic understanding of premium residential architecture: how to create an environment that simultaneously preserves historical value, emphasises exclusivity, and meets the highest standards of quality living.

Unique solutions

  • all-season courtyard garden with landscape design and intimate recreation areas;
  • private club spaces for residents;
  • silent engineering systems (BMS) and "quiet technology" solutions;
  • car lifts with direct access to the underground parking;
  • bespoke architectural and interior solutions emphasising the exclusivity of the residential complex.

Design

The primary challenge lays within the complex process of integrating 19th-century buildings with contemporary residences. The architectural solution focused on preserving historical identity while creating an elite residential environment with the highest level of comfort. The facades of the new buildings are clad in granite, with the ground floor designed with a characteristic "skirt" slope, harmonising the ensemble with the historic surroundings. Arched openings and glazed facades echo the architectural language of the restored mansions. Glass-enclosed passages provide an organic link between the new and historic volumes. Each residence features private patios and landscaped terraces, creating the atmosphere of a secluded home in the very heart of the metropolis.

Historical context

The Ilyinka 3/8 is located within a walking distance of the Kremlin and unites carefully restored 19th-century mansions with contemporary residential buildings. The Ilyinka 3/8 represents a benchmark of premium Moscow architecture, where history and modernity converge into a single ensemble. The project forms a unique residential environment that combines privacy, advanced technology, and cultural continuity.

Development of large-scale residential projects, including the design and construction of apartment buildings based on standardised for the mainstream housing market

large-scale residential

2021–2023

50 000–65 000 м²

Samolet

Apex Project

McKingley

My coverage equivalent to RIBA UK and HOAI EU

  • UK: 3–4 RIBA (Spatial Coordination, Technical Design)
  • EU: 4–5 HOAI (Approval / Execution Design)
  • Development of construction drawings, BIM documentation, and compliance work at the execution level.

My team

Architect
2-4 more Architects
1-7 Junior Architects
Advisor Head Architect

Responsibilities

  • development of project and construction documentation (plans, sections, elevations, and details);
  • compiled material and element schedules of facades, roofs, walls, ceilings, furniture, and etc.;
  • insolation and daylight factor calculations;
  • coordination of architectural solutions with engineering and structural sections;
  • supervision;

Work on large-scale residential projects provided a solid foundation in BIM proficiency, including modelling, data structuring, and documentation systematisation.

Design

Special attention was given to the planning logic of apartments, the architectural expressiveness of facades, and the accuracy of construction documentation. The key part of work involved regulatory calculations of insolation and natural lighting (daylight factor), the development of functional layouts, and compliance with fire safety requirements - all ensuring that the project met modern standards for residential environments.

Historical context

Mass residential development has been the dominant housing type in modern Russia, ranging from five-story "khrushchevka" (panel) blocks to high-rise buildings of 17-24 floors. Work on residential complexes with areas of 50,000 - 65,000 m² became an important stage in my professional practice, helping me to develop a systematic understanding of housing architecture and the principles of comprehensive urban development.

Samolet Group - a federal development company and IT solutions provider in the real estate sector, the largest in Russia.

Key features

  • work within a development institute ranked among the top three in Russia by project volume;
  • development of residential and public buildings, as well as social and industrial infrastructure facilities;
APEX Project Bureau - a Moscow-based multidisciplinary architectural company specialising in BIM solutions. Rapid response to market changes and adaptation to modern construction technologies have made APEX one of Russia's leading firms in general design. Key areas of expertise include working with cultural heritage sites and supporting international architects.

Key features

  • full immersion and project work in a BIM environment, with strong integration into the corporate workflow;
  • regular testing to confirm technical skills, regulatory knowledge, and compliance with corporate standards;
A modern architectural and design company delivering unique and technically difficult projects for state enterprises and major investment and construction corporations.

Key features

  • development of residential complexes at both project and construction documentation stages;
  • interior design projects for preschool educational facilities;

Design of educational facilities: Olga Forsh secondary school, preschool educational institution

Designing educational facilities combined work with social functions, public spaces, and supporting infrastructure. This experience shaped an understanding of architecture as a tool that directly influences the quality of the environment and contributes to social development.

educational

2019–2021

6 000–15 470 м²

My coverage equivalent to RIBA UK and HOAI EU

  • UK: 2–4 RIBA (Concept → Technical Design)
  • EU: 3–5 HOAI (Design → Execution Planning)
  • Concept development, daylight studies, planning solutions, and coordination with engineers.

My team

Junior Architect
Architect
Head Architect

Historical context

The period of working on educational projects became an important stage in professional practice, broadening the understanding of socially significant architecture.

Design

In public buildings, the key tasks were functional organisation of space and compliance with regulatory standards. Special focus was given to the design of a secondary school in St. Petersburg and the development of a preschool interior project, including regulatory calculations of insolation and natural lighting (daylight factor).

Responsibilities

  • development of planning solutions;
  • creation of kindergarten interior design concept;
  • insolation and daylight factor calculations;
  • coordination of architectural solutions with engineering and structural sections;
Work on educational facilities provided valuable experience in detailed design of nodes and schedules, manual daylight calculations, and integration of engineering solutions. The acquired methods and approaches became the foundation for future work on complex cultural and public buildings.

Development of low-rise residential and public buildings

residential / public

2017–2019

600–2 500 м²

My coverage equivalent to RIBA UK and HOAI EU

  • UK: 1–3 RIBA (Preparation → Developed Design)
  • EU: 2–4 HOAI (Preliminary → Approval Planning)
  • Early professional experience: sketches, layouts, and concept design drawings.

My team

Junior Architect
Architect

Historical context

My professional path began with a small architectural bureau, working on the first residential and public building projects. Despite their modest scale, this stage became the starting point that allowed me to master the fundamentals of the development process and gain an initial understanding of the profession.

Responsibilities

  • preparation of technical drawings;
  • development of sketches and presentation materials;
  • review of initial and regulatory documentation;
  • assisting in development of planning solutions;
  • compilation of schedules and specifications;
  • material selection and making facade documentation;
Working on first projects laid a foundation for essential skills: attention to detail, precision in drawings, and the ability to navigate regulations and documentation. This experience became the basis for professional growth - from the simple tasks to independent work on complex heritage and contemporary public projects.